Pipesim new features
Learn more about the latest additions to Pipesim
Advanced well sensitivity analysis enrichment
The advanced well sensitivity analysis, first introduced in 2026.1, has been enriched with several new capabilities to improve the workflow flexibility and reporting quality:
- Row-based workflow with up to 10 variables. Users can now configure each sensitivity scenario explicitly within a single row, enabling clearer setup and easier scenario management.
- Second right axis on the sensitivity tab plot. A new secondary right side Y axis allows reporting of an additional output parameter, improving comparative visualization of sensitivity results.
- Profile results tab. Users can now review and compare profile results for the entire system or selected branches, providing more detailed insight into system performance.
- Auxiliary results tab for multiple sensitivity cases. A dedicated view for simulation outputs based on spot report configurations, enabling streamlined comparison across sensitivity scenarios.
Upgrade of the Olga-S flow model to version 2026.1
The list of available flow correlations is updated to include Olga-S 2026.1. The main change between 2025.1 and 2026.1 is a new CO2 flow model, which is suitable for fluids with CO2 mole fraction greater than 90%. Olga-S two-phase and three-phase correlations have no improvement except for a few bug fixes.
Compatibility changes due to removal of SQL CE and other deprecated libraries
As part of our ongoing effort to enhance quality, performance, and security, several legacy components, such as SQL CE, have been removed from the Pipesim simulator installation package. Because of this change, models saved in Pipesim 2021.2 or earlier cannot be directly opened with the 2026.2 release. To use these models in 2026.2, they need to be opened and saved first using any version of Pipesim simulator from 2022.1 to 2026.1.
Enable emulsion options for Multiflash PVT files (*.MFL)
Previously, fluid modeling using Multiflash generated PVT files did not support emulsion correlation or the specification if inversion water cut. In Pipesim 2026.2 this limitation has been addressed, which improves flexibility when configuring emulsion behavior and ensures consistent functionality across different fluid modeling options
PythonToolkit improvements
The following enhancements are available in Pipesim 2026.2 for the PythonToolkit:
- Support for well calibration task
- Support for selecting Olga-S 2026.1 flow model
- Support for emulsion correlation selection for Multiflash PVT file
- Support for getting network branch names for rate constraints in network simulation task
- Improved memory management to prevent memory leakage
- Python environment upgraded to 3.14
10-dimensional multi-test well mode calibration
Pipesim 2026.1 comes with a new multi-test well calibration task. The optimization algorithm tunes up to 10 calibration parameters simultaneously to match measured well test conditions. This includes:
- Flow correlations friction and holdup factors.
- Heat transfer U-value multiplier.
- Fluid gas and water phase ratios.
- Reservoir pressure and temperature.
- Different inflow performance relationship (IPR) parameters.
- ESP and PCP derating and slippage factors.
Unlike the existing data-matching task, which involves adding the well test data into the catalogue and then importing a single test into the task, the new approach allows for direct entry of multiple well test data sets into the calibration workflow, and assigning a weighting factor to the test in case multiple tests are included in the calibration.
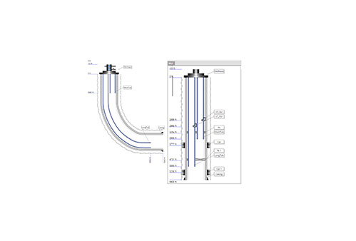
Advanced well-sensitivity analysis
The new sensitivity analysis workflow for the advanced well is designed to improve the user experience by enabling parametric analysis through the permutation of up to five variables. It generates a matrix of independently solved cases, which are then combined and visualized to deliver a quick and intuitive assessment for identifying optimal operating conditions.
Upgrade of the Olga-S flow model to version 2025.1
The list of available flow correlations in Pipesim™ is updated to include Olgas-S version 2025.1 with support for the high-definition model (HD). The HD model represents a step-change in the fidelity of multiphase flow modeling and is a result of over 15 years of industry-sponsored research.
Branch rate constraint
The rate constraint feature for the network simulation task has been extended to support intermediate branches. Previously, constraints could be set only for the terminal branches that have source/sink/well. Branches that have flowrate constraints defined must contain one or more chokes. When the network solves, the constraint is met by adjusting the bean size of the choke.
Counter flow temperature correction
To consider the effect of heat exchange between production and gas lift injection fluids at the well head zone, a new temperature correction option has been added to gas-lift injection well system. Based on user selection, the temperature can be corrected at the well head or along the tubing from the specified depth.
Upgrade to Multiflash 7.6
Pipesim 2026.1 comes with Multiflash 7.6 installed by default. For more information, refer to the Multiflash user interface.
PythonToolkit improvements
The following enhancements are available in Pipesim 2026.1 for the PythonToolkit:
- Support for spot report results:
- Composition details
- Stock tank fluid properties
- Flowing fluid properties
- Cumulative values
- Multiphase flow values
- Slugging values
- Pigging values
- Heat transfer values
- Support for user-defined metocean data
- Support for OneSubsea multiphase booster recirculating flow
- Python environment upgraded to 3.13
2025
Concentric tubing configuration
The advanced well type was introduced in Pipesim 2023.1 to support complex well configurations. The latest version, Pipesim 2025.1, supports concentric tubing configuration, where a “pipe-in-pipe" setup is installed in the wellbore to enable various scenarios, such as coiled tubing lifting, velocity strings, and others.
Combining production and gas-lift injection networks
In prior releases, the advanced well type has only been exposed under the well perspective, and modeling multiple advanced wells in the network perspective was not possible. In Pipesim 2025.1, this limitation is removed, which allows for, among other scenarios, combining production pipeline networks of gas-lifted wells with the gas lift injection flow line network in the same model.
Black oil multi-point calibration
Pipesim 2025.1 facilitates calibrating black oil fluid using a table of measured fluid properties. The user can select a different correlation for each fluid property and view the tuning factor used to adjust the original correlation to match the measured fluid properties. A new tab is added to view plots of all fluid properties to visually quality-check the selected PVT correlation plot against the sample fluid properties.
Maximum allowable operating pressure (MAOP)
In Pipesim 2025.1 a new functionality is added to predict the maximum allowable operating pressure (MAOP). The MAOP functionality associates ranges of MAOP ratios with risk factors, to help you easily identify potential problems. The MAOP risk can be visualized on the GIS map.
2024
Dual-string tubing configuration
In Pipesim 2024.1, the advanced well functionality is extended to support wells with a dual string configuration, in which a pair of two parallel tubing strings are installed in the same wellbore, to enable production from or injecting to isolated zones that cannot flow simultaneously into a single tubing string.
Upgrade of the Olga S flow model to the version from Olga 2023.1
The list of available flow correlations in the Pipesim simulator is updated to include the version of the Olga S flow model from Olga 2023.1, with support for the high-definition (HD) model. The HD model represents a step-change in the fidelity of multiphase flow modeling and is a result of over 15 years of industry-sponsored research.
Gas lift design report
In Pipesim 2024.1, you have an option to generate a PDF report with all gas lift design input parameters and output results, including the comprehensive gas lift design plot. The report header includes user-defined data such as company, field, well, etc.
Upgrade of the simulation results' file format
To reduce the size of simulation result files that are stored in the pipr folder, Pipesim 2024.1 uses a new file format. This means that if you open a previously saved model using 2024.1, you will notice that the results in the new version are not displayed by default. A quick re-run is needed to visualize the results again
2023
New well type: advanced
A new advanced well type to support complex well configurations. This includes a limited edition of this functionality, enabling modeling of: flow control valve, tail pipe, tubing and annulus flow with two surface pressure conditions, ESP separated gas in the annulus, steam circulation with or without completion, and production/injection pairs using the same well perspective.
Smart well completions with flow control valve (FCV)
Modeling of FCVs is introduced under the advanced well editor. The flow in the annulus is modeled and the number of FCVs is not limited or related to the number of completions in the model. The FCV catalog is updated with all SLB valves, with the option to add a custom valve from other manufacturers.
Enable phase ratio override on Multiflash PVT files
Phase ratio override is the ability to change gas and water ratios at any stream inlet and neglect the phase ratios specified or calculated in the original fluid description. This feature is enabled to facilitate, in addition to overriding phase ratio in completions, the fluid editor and in sources, generating vertical flow performance (VFP) files while a Multiflash (MFL) file is used in the model.
New GIS map backgrounds
To improve the visualization on the GIS canvas, three background modes are added to the list of base maps: white, light, and dark. These backgrounds enable the display of better contrast of the network model objects and results and hide geographical data.
2022
New PVT fluid package: Symmetry
This release includes the Symmetry™ process software platform as an additional PVT package under compositional fluid modeling options. The Symmetry PVT package is a powerful fluid engine that—in addition to the basic fluid characterization capabilities—enables you to model solid formation risks of hydrate, wax, and asphaltene. It also lets you display a solid CO2 line on the phase diagram.
Expose ESP motor performance results
When you enable the surface power correction under the ESP Calculation Options tab and add a motor and a cable to the model, various motor variables are displayed as part of the ESP node and profile results. This includes motor load, efficiency, current, voltage, power factor, and cable voltage drop.
Support for ESP permanent magnet motors
In Pipesim 2022.1, you can model the installation of a +permanent magnet motor (PMM) in ESP systems. The overall ESP system—including operating speed, power, head, and efficiency— is adjusted based on the number of poles in the PMM, which allows for operating frequencies greater than 420 Hz.
Gas lift diagnostics plot added to P/T and nodal analysis tasks
If you model a well with a gas lift injection valve system and enable the multipoint option, the gas lift diagnostics plot is now added to the +P/T and nodal analysis tasks. Previously, this plot was only +available under the gas lift diagnostics task.
2021
New Python Toolkit environment
The previous Python Toolkit environment from Enthought has been replaced with a new Python distribution manager from Anaconda. A new script editor VSCodium has also been added. Various new Pipesim steady-state multiphase flow simulator functionalities are now supported, such as rate constraints in network simulation and sensitivity in NODAL analysis task.
Gas lift modeling using VPC catalog
In addition to the conventional gas lift valves catalog available in the Pipesim simulator, you can now connect and utilize the Valve Performance Clearinghouse (VPC) catalog from Louisiana State University for more accurate gas lift modeling.
Corrosion Model from TPA
A corrosion model from Trusted Pipeline Advisor has been added. This corrosion model is consistent with the NACE-ICDE standards and accounts for various new parameters such as regional stagnant water accumulations, bacteria or oxygen ingress, pre-existing corrosion damage, and evidence of black powder or debris.
Multiflash version 7.1
Multiflash is an advanced fluid characterization software from KBC. In Pipesim 2021.1, Multiflash 7.1 is added and will be downloaded automatically. You may refer to KBC website for more details. Multiflash license is sold separately.
Composite IPR
A new option ‘Vogel water cut correction’ is added with ‘Use Vogel below bubble point’ option. This new option adjusts the IPR curve below bubble point based on water fraction. For higher water cut values, the curve tends to become more linear, and the effect of free gas is reduced.
GL Multi-pointing in NODAL Analysis
Gas lift multi-pointing is a non-desirable condition that can be modeled using gas lift diagnostics task. Now the PIPESM simulator can predict this condition in NODAL analysis and data comparison tasks. The valve status, open, close, or throttling is also available when the multi-pointing option is enabled.
Heat transfer in wells
In Pipesim 2021.1, you can let Pipesim calculate the heat transfer coefficient for you using Ramey model, which takes into consideration geothermal conductivity as well as tubing, casing, and annulus material properties.
2020
ESP surface power calculations
The Pipesim simulator can now calculate the ESP power consumption at surface conditions. To enable this functionality, you need to add the installed motor and cable in the well.
Gas lift modeling using VPC catalog
In addition to the conventional gas lift valves catalog available in the Pipesim simulator, you can now connect and utilize the Valve Performance Clearinghouse (VPC) catalog from Louisiana State University for more accurate gas lift modeling.
Annulus flow in surface pipes
Now you can model annulus flow in surface pipes. This will help in modeling multilateral completions as well as some special configurations for SAGD operations.
Prediction of gas lift multi-pointing
Gas lift multipointing is a nondesirable condition that can be modeled using the gas lift diagnostics task. Now the Pipesim simulator can predict this condition in pressure and temperature and system analysis tasks.
Erosion and corrosion risk indicators
Risk indicators for erosional velocity ratio (EVR) and corrosion rate can now be calculated based on user-defined risk ranking limits from negligible to severe. This can then be visualized on the results color gradient on the GIS canvas.
Python Toolkit additional features
The extensibility framework PythonToolkit has been updated with additional functionalities to support new features and functionalities added in the Pipesim simulator in this release.